Проект дома «Станция техобслуживания МH314»

-
🏠 Каркасная постройка :Базовый: 8 452 000 ₽
Оптимальный: 9 431 000 ₽ -
🏠 Домокомплект из СИП :Базовый: 3 957 000 ₽
Оптимальный: 4 524 000 ₽ -
🏠 Постройка из СИП :Базовый: 6 881 000 ₽
Оптимальный: 7 448 000 ₽
Описание
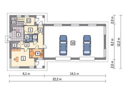
Современное и функциональное решение для создания автомастерской, магазина или гаражно-складского комплекса, отвечающего требованиям современного бизнеса. Он сочетает в себе эстетическую привлекательность, гибкость использования и современные решения.
Характеристики
Площадь застройки - 314 м²
Этажность - 2
Количество комнат - 6



