Проект дома «Дом МТ132»

-
🏠 Каркасная постройка :Базовый: 4 202 000 ₽
Оптимальный: 4 749 000 ₽ -
🏠 Домокомплект из СИП :Базовый: 1 943 000 ₽
Оптимальный: 2 489 000 ₽ -
🏠 Постройка из СИП :Базовый: 3 339 000 ₽
Оптимальный: 3 885 000 ₽
Описание
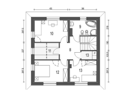
Это двухэтажный дом с продуманной планировкой, идеально подходящий для комфортного проживания семьи. На первом этаже расположена просторная гостиная, объединенная с кухней и столовой, с выходом на террасу. Второй этаж включает спальни и ванные комнаты, создавая комфортное личное пространство для каждого члена семьи.
Характеристики
Площадь застройки - 132 м²
Этажность - 2
Количество комнат - 4
Индивидуальный заказ
Мы всегда готовы разработать индивидуальный проект дома, соответствующий вашим желаниям. Наши архитекторы и дизайнеры превратят ваши идеи в уникальный и функциональный дизайн.
Мы учитываем все предпочтения, при заключении договора, индивидуальный проект - бесплатно. Создайте свой идеальный дом!




