Проект дома «Дом МТ165»

-
🏠 Каркасная постройка :Базовый: 5 026 000 ₽
Оптимальный: 5 649 000 ₽ -
🏠 Домокомплект из СИП :Базовый: 2 444 000 ₽
Оптимальный: 2 951 000 ₽ -
🏠 Постройка из СИП :Базовый: 4 051 000 ₽
Оптимальный: 4 562 000 ₽
Описание
Двухэтажный коттедж, выполненный в современном европейском стиле. Дом предлагает оптимальное сочетание комфорта и функциональности, предназначен для семьи из 4-5 человек и создан для уютного проживания с учетом всех современных потребностей.
Характеристики
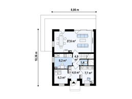
Площадь застройки - 165 м²
Этажность - 2
Количество комнат - 5
Индивидуальный заказ
Мы всегда готовы разработать индивидуальный проект дома, соответствующий вашим желаниям. Наши архитекторы и дизайнеры превратят ваши идеи в уникальный и функциональный дизайн.
Мы учитываем все предпочтения, при заключении договора, индивидуальный проект - бесплатно. Создайте свой идеальный дом!





