Проект дома «Дом МТ159»

-
🏠 Каркасная постройка :Базовый: 4 854 000 ₽
Оптимальный: 5 464 000 ₽ -
🏠 Домокомплект из СИП :Базовый: 2 300 000 ₽
Оптимальный: 2 790 000 ₽ -
🏠 Постройка из СИП :Базовый: 3 834 000 ₽
Оптимальный: 4 328 000 ₽
Описание
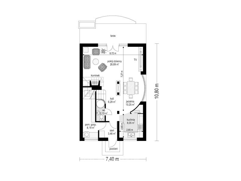
Просторный двухэтажный дом, разработанный для коомфортного проживания семьи из 4-5 человек. Дом сочетает функциональность и современный дизайн, обеспечивая удобное расположение зон для отдыха и работы.
Характеристики
Площадь застройки - 160 м²
Этажность - 2
Количество комнат - 4
Индивидуальный заказ
Мы всегда готовы разработать индивидуальный проект дома, соответствующий вашим желаниям. Наши архитекторы и дизайнеры превратят ваши идеи в уникальный и функциональный дизайн.
Мы учитываем все предпочтения, при заключении договора, индивидуальный проект - бесплатно. Создайте свой идеальный дом!




